Laith Matarweh Studio for Architecture

Fashion Design Atelier in Jabal Luweibdeh

Year:
2025
Type:
Fashion Design Atelier
Location:
Jabal Luweibdeh | Amman, Jordan
Area:
45m²
Collaborators:
Hanan Salameh

The design of this fashion atelier in Jabal Luweibdeh began with a simple yet persistent question: how can architecture emphasize the quiet warmth and understated beauty of Jabal Luweibdeh’s urban fabric? The neighborhood- like those of the hills of Amman at large- bears a shared architectural language: stone façades articulated through measured openings on the outside, and on the inside, spaces defined by their simplicity, restraint, and clarity. Yet beyond these aesthetic qualities lies a deeper resonance. The interiors of Luweibdeh’s buildings hold a stratified memory of the place- spaces that have habituated over time to accommodate shifting functions, changing stories, and an evolving human presence.

The atelier builds on this capacity of spatial memory. It transforms an existing interior into a setting where craft and creation coexist seamlessly, allowing the program to shape an atmosphere rather than dominate it. Clean geometries, honest materials, and controlled light emphasize the inherent character of the original structure while offering a flexible framework for the evolving rhythms of its fashion designer. In doing so, the project seeks to honor Luweibdeh’s architectural heritage, revealing its richness not through addition, but through careful framing- letting the space itself continue its story through new uses and new hands.

Text

The design of this fashion atelier in Jabal Luweibdeh began with a simple yet persistent question: how can architecture emphasize the quiet warmth and understated beauty of Jabal Luweibdeh’s urban fabric? The neighborhood- like those of the hills of Amman at large- bears a shared architectural language: stone façades articulated through measured openings on the outside, and on the inside, spaces defined by their simplicity, restraint, and clarity. Yet beyond these aesthetic qualities lies a deeper resonance. The interiors of Luweibdeh’s buildings hold a stratified memory of the place- spaces that have habituated over time to accommodate shifting functions, changing stories, and an evolving human presence.

The atelier builds on this capacity of spatial memory. It transforms an existing interior into a setting where craft and creation coexist seamlessly, allowing the program to shape an atmosphere rather than dominate it. Clean geometries, honest materials, and controlled light emphasize the inherent character of the original structure while offering a flexible framework for the evolving rhythms of its fashion designer. In doing so, the project seeks to honor Luweibdeh’s architectural heritage, revealing its richness not through addition, but through careful framing- letting the space itself continue its story through new uses and new hands.

Images

Street Elevation Closeup

Street Elevation Closeup

Street Elevation Closeup

Street Elevation

Street Elevation

Street Elevation

The Workshop

The Workshop

The Workshop

The Workshop

The Workshop

The Workshop

The Dressing Room

The Dressing Room

The Dressing Room

The Dressing Room

The Dressing Room

The Dressing Room

The Workshop

The Workshop

The Workshop

The Workshop

The Workshop

The Workshop

The Dressing Room

The Dressing Room

The Dressing Room

The Dressing Room

The Dressing Room

The Dressing Room

Details Closeup

Details Closeup

Details Closeup

Details Closeup

Details Closeup

Details Closeup

Details Closeup

Details Closeup

Details Closeup

Details Closeup

Details Closeup

Details Closeup

Details Closeup

Details Closeup

Details Closeup

Drawings

Ground Floor Plan

Ground Floor Plan

Ground Floor Plan

Axonometric

Axonometric

Axonometric

Section A-A

Section A-A

Section A-A

Section B-B

Section B-B

Section B-B

Section C-C

Section C-C

Section C-C

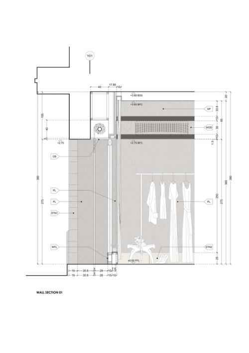
Wall Section 01

Wall Section 01

Wall Section 01

Wall Section 02

Wall Section 02

Wall Section 02

Threshold Details

Threshold Details

Threshold Details

Sketches